Продаж будинку, Центр міста (№ 22-346-477)
Ціна: 80 000 $

Адреса: Короленко, Біла Церква, Білоцерківський, Київська, Центр
Характеристики
| Ціна: | 80 000 $ |
|---|---|
| № об'єкта: | 22-346-477 |
| Тип: | будинок |
| Поверхів: | 2 |
| Спалень: | 4 |
| Площа будинку: | 114 м2 |
| Ділянка: | 5.4 сот |
| Додатково: | гараж |
Опис
Продаж будинку, Центр міста. Зручне і затишне місце для комфортного проживання великої родини. Поруч магазини, ринок, тролейбусні та маршрутні зупинки.
Підведені всі необхідні комунікації – електропостачання, вода, газ (окремі лічильники в будинку і літній кухні). Ділянка площею 5,4 сотки.
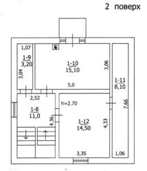
На території садиби знаходиться двоповерховий будинок площею 114 кв.м, літня кухня площею 35 кв.м, кілька допоміжних приміщень. Гараж площею 20 кв. м + окремий заїзд для авто.
Будівлі не нові, але добротні, можна все модернізувати до сучасних стандартів.
















