Оренда офісного приміщення – 110 м², центр міста (район ТЦ «Сільпо») (№ 1-585-606)
Ціна: 200 грн. + комунальні

Характеристики
| Ціна: | 200 грн. + комунальні | 
|---|---|
| № об'єкта: | 1-585-606 | 
| Тип: | об'єкт сфери послуг, інше | 
| Поверх: | 3 / 3 | 
| Площа: | 110 м2 | 
Адреса: Київська, Білоцерківський, Біла Церква, Центр, А.Шептицького
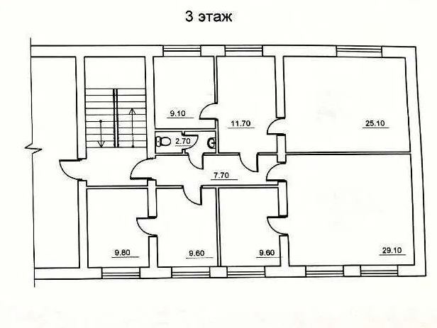
Пропонується в оренду просторе офісне приміщення у самому центрі міста, з вигідним розташуванням біля ТЦ «Сільпо» та зручним транспортним сполученням.
🔹 Площа: 110 м²
🔹 Формат: кабінетна система – 6 окремих кабінетів від 12 до 30 м²
🔹 Комунікації: підключені всі необхідні (електрика, вода, каналізація)
🔹 Опалення: сучасні кондиціонери
🔹 Зручності: власний санвузол
🔹 Розташування: фасадна частина будівлі з активним пішохідним та автомобільним трафіком
🔹 Додаткові можливості: розміщення зовнішньої реклами на фасаді
Переваги приміщення:
Центр міста – зручне розташування для співробітників та клієнтів.
Кабінетна система дозволяє комфортно організувати роботу команди або розмістити різні підрозділи.
Сучасне опалення кондиціонерами забезпечує оптимальний мікроклімат протягом року.
Фасадне розміщення – хороша видимість для бізнесу та можливість додаткового брендування.
Приміщення ідеально підійде для офісу компанії, представництва, навчального центру, ІТ-команди, сервісного чи консалтингового бізнесу.










 exkluziv.asnu@ukr.net
 exkluziv.asnu@ukr.net


